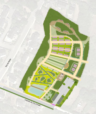
Maître d’ouvrage : Commune d’ARZON (Morbihan) Mission : A.M.O. (2018), Diagnostic, Esquisses équipe : Agence Gilles GAROS, paysagiste concepteur et urbaniste OPQU (Mandataire) GC Infrastructures, BET VRD EAU ET DéBIT, Dossier Loi sur l’Eau SLC Conseil, Procédures juridiques, foncier Surface : 1.4 ha Coût prévisionnel des travaux : 1 043 000€ HT Le projet valorise les structures paysagères existantes et les différences altimétriques du site. En partie haute, des columbariums sont intégrés dans des murets de soutènement, et un belvédère offre des vues lointaines sur le port et les prairies à l’est. La composition végétale (lisière boisée, bosquets, clairières) canalise les perspectives visuelles nord-sud ou est-ouest, évite les covisibilités avec les limites pavillonnaires, compartimente le cimetière, et offre des ambiances contrastées aux différents espaces de recueillement. Les espaces d’inhumation de caveaux traditionnels sont disposés sous forme de « chambres funéraires » délimitées par une trame arborée (bosquets) ou arbustive. L’utilisation de caveaux à dalles engazonnées confère un aspect de prairie à l’espace central, offrant une alternative au caractère monolithique et minéral du cimetière traditionnel. Les espaces cinéraires sont constitués d’îlots de graminées et plantes vivaces, et un bosquet abrite le jardin du Souvenir. Un bassin de temporisation avec rives plantées de végétaux servant à la phytoépuration est dimensionné en accord avec les préconisations du dossier Loi sur l’eau.
Maître d’ouvrage : Commune d’ARZON (Morbihan) Mission : A.M.O. (2018), Diagnostic, Esquisses équipe : Agence Gilles GAROS, paysagiste concepteur et urbaniste OPQU (Mandataire) GC Infrastructures, BET VRD EAU ET DéBIT, Dossier Loi sur l’Eau SLC Conseil, Procédures juridiques, foncier Surface : 1.4 ha Coût prévisionnel des travaux : 1 043 000€ HT Le projet valorise les structures paysagères existantes et les différences altimétriques du site. En partie haute, des columbariums sont intégrés dans des murets de soutènement, et un belvédère offre des vues lointaines sur le port et les prairies à l’est. La composition végétale (lisière boisée, bosquets, clairières) canalise les perspectives visuelles nord-sud ou est-ouest, évite les covisibilités avec les limites pavillonnaires, compartimente le cimetière, et offre des ambiances contrastées aux différents espaces de recueillement. Les espaces d’inhumation de caveaux traditionnels sont disposés sous forme de « chambres funéraires » délimitées par une trame arborée (bosquets) ou arbustive. L’utilisation de caveaux à dalles engazonnées confère un aspect de prairie à l’espace central, offrant une alternative au caractère monolithique et minéral du cimetière traditionnel. Les espaces cinéraires sont constitués d’îlots de graminées et plantes vivaces, et un bosquet abrite le jardin du Souvenir. Un bassin de temporisation avec rives plantées de végétaux servant à la phytoépuration est dimensionné en accord avec les préconisations du dossier Loi sur l’eau.

ARZON

Création d’un second cimetière

ARZON

Création d’un second cimetière